Rif: VILLA IN VENDITA A NAPOLI - VIA NUOVO TEMPIO -
NAPOLI
NAPOLI - zona Capodichino
In vendita – Villino con spazio esterno in San Pietro a Patierno, a pochi passi da Piazza Capodichino “Giuseppe Di Vittorio”
Proponiamo in vendita un grazioso villino al piano terra situato nel cuore del quartiere San Pietro a Patierno, in una posizione strategica e comoda per raggiungere servizi, scuole e principali collegamenti.
L'immobile dispone di una gradevole area esterna di pertinenza, ideale per trascorrere momenti conviviali all'aperto, pranzi in famiglia o semplicemente per godersi uno spazio privato e tranquillo.
La soluzione si presenta così composta:
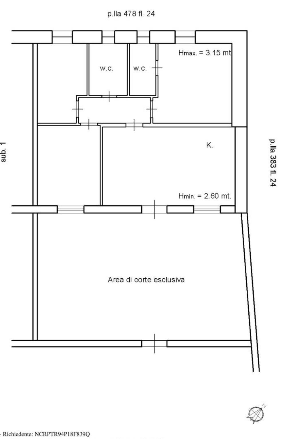
• Ingresso in cucina–salone, ambiente ampio e funzionale
• Tre camere da letto, comode e ben distribuite
• Due bagni, entrambi di buona metratura
Attualmente il villino è locato con regolare contratto, con scadenza tra tre anni, garantendo una rendita immediata di Eu. 550 mensili. Una proposta ideale sia per chi desidera un investimento già a reddito, sia per chi cerca un'abitazione versatile da personalizzare in futuro.
La combinazione di spazio esterno privato, comodità al piano terra e posizione strategica rende questa soluzione un'opportunità rara e interessante nel mercato della zona.
Proponiamo in vendita un grazioso villino al piano terra situato nel cuore del quartiere San Pietro a Patierno, in una posizione strategica e comoda per raggiungere servizi, scuole e principali collegamenti.
L'immobile dispone di una gradevole area esterna di pertinenza, ideale per trascorrere momenti conviviali all'aperto, pranzi in famiglia o semplicemente per godersi uno spazio privato e tranquillo.
La soluzione si presenta così composta:
• Ingresso in cucina–salone, ambiente ampio e funzionale
• Tre camere da letto, comode e ben distribuite
• Due bagni, entrambi di buona metratura
Attualmente il villino è locato con regolare contratto, con scadenza tra tre anni, garantendo una rendita immediata di Eu. 550 mensili. Una proposta ideale sia per chi desidera un investimento già a reddito, sia per chi cerca un'abitazione versatile da personalizzare in futuro.
La combinazione di spazio esterno privato, comodità al piano terra e posizione strategica rende questa soluzione un'opportunità rara e interessante nel mercato della zona.
Consistenze
| Descrizione | Superficie | Sup. comm. |
|---|---|---|
| Principali | ||
| Immobile - piano terra | 90 Mq | 90 Mqc |
| Immobile - piano terra | 50 Mq | 50 Mqc |
| Totale | 140 Mqc | |










